Residential Architecture & Design
Locations
TRAVELS TO
Takes up residential projects in Bengaluru
Bengaluru, Karnataka, India
Available for projects across India
India
VISIT AT
Visit Design Studio in Peenya, Bengaluru
See address
OSSA Architects, 8th floor, Brigade Rubix, Plot no. 20, HMT Main Rd, off Tumkur Road, Phase -1, Peenya, Bengaluru, Karnataka 560013, India
designs homes near Yeshwanthpur, Jalahalli, Orion Mall, Goraguntepalya, Malleshwaram
Pricing Guide
Full-Scope Architectural Design & Consultancy
Design & Visualization
- Site Analysis: Detailed topographic study to handle complex plots, slopes, and natural light optimization.
- Concept Development: Iterative design sketches and massing models incorporating specific Vaastu Shastra principles.
- 3D Modeling: Exterior 3D perspectives to visualize facades, perforated screens, and cladding details.
Technical Documentation
- Sanction Drawings: Preparation of all architectural drawings required for municipal approvals and bylaw compliance.
- Construction Drawings: Comprehensive GFC sets including floor plans, split-level sections, staircase details, and door/window schedules.
- MEP Integration: Coordination of electrical, plumbing, and HVAC layouts into the main architectural plan.
Execution Support
- Material Selection: Assisted showroom visits for selecting tiles, sanitary ware, paints, and facade materials.
- Site Supervision: Periodic visits to ensure construction quality aligns with design intent.
- Costing: Preliminary budgeting and Bill of Quantities (BOQ) to assist in contractor selection.
Residential Interior Design & Styling
Planning & Layouts
- Space Optimization: Rigorous furniture layout planning to maximize storage and ensure ergonomic circulation.
- Theme Creation: Mood boards defining material palettes, colors, and geometric concepts.
- Lighting Design: Reflected ceiling plans integrating false ceilings, cove lighting, and electrical points.
Custom Millwork Design
- Joinery Drawings: Detailed technical drawings for modular kitchens, wardrobes, and storage units.
- Feature Elements: Design specifications for TV units, floating vanity counters, and geometric wall panels.
- Material Specs: Selection of durable core materials like BWP Plywood and premium hardware brands.
Final Styling & Quality
- Soft Furnishings: Selection guidance for curtains, upholstery fabrics, and loose furniture.
- Site Coordination: Regular checks on carpentry finishes, alignment, and material quality during fit-outs.
- Handover: Final quality checks and snag list review to ensure long-term durability.
About Residential Architecture & Design
What Home Means to Us
A home isn’t just walls and a roof. It’s where you find comfort, make memories, and grow with your people. I’ve been at this since 1996, and I still believe every space should feel like it’s truly yours - not just another copy-paste job.
How I Design
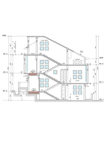
I keep things simple, but not boring. My style is clean and contemporary, but I don’t force a look on any site. I let the land do the talking - whether it’s a steep slope, a tight city plot, or a corner lot. That’s what site-responsive architecture is all about. If you want Vaastu-compliant house plans, I can blend those in without making the place look old-school.
I’m big on function. If you see a metal screen on the facade, it’s not just for show - it’s there for privacy and to let in that soft, filtered light.
Tackling Tricky Plots
Got a weird plot? I actually like those. Split-level home design is my go-to for slopes. It’s not just a fix - it gives you cool spaces, better flow, and solves stuff like parking and entry on different levels.
What I Offer
- Custom homes and villas, from first sketch to final drawing
- Apartment interior solutions, with smart storage and personalized color palettes
- Designs that last - I want your place to look good for years, not just for the ‘gram
If you want a home that feels like it’s made for you, not just anyone, I’m here for it.
Meet your Expert
Ossa
12 connects in last 3 months
My Story
Started OSSA in '96 - feels like a lifetime and a blink, both. Sridevi wrote a book about our journey, '2.9 Million Sft & building'. Launching it with our crew, family, friends - that hit different. We dropped the usual hierarchy early, just wanted good ideas from anywhere, anyone. Our team? Curious, honest, bit stubborn sometimes. We like learning on the go. Projects big or small, we just want to get it right.
My Work
Architecture & Interior Design - We do commercial, residential, industrial, and hospitality projects all over India - from big campuses to slick office interiors.
Integrated Building Design - Every building gets its own vibe, fits the place. We blend architecture and landscape, so nothing feels forced.
Context-Driven & Adaptive Planning - We tweak plans for each site - like split-level planning for slopes, so spaces feel natural and practical.
Contemporary & Material-Focused - We pick materials that work - engineered glass, ACP, tensile fabrics. Always aiming for a clean, modern look.