Featured
This is the first impression of my work, showcasing the core principles of my design philosophy: material honesty, the interplay of light and volume, and the seamless integration of nature. Each project is an exploration of an idea, crafted to create spaces that are not just built, but felt.
Residences: Sanctuaries of Light and Air
I design homes that are more than just shelter; they are personal sanctuaries that breathe. By focusing on natural light, double-height volumes, and a seamless connection to nature, I create spaces for multi-generational families that are both private fortresses and open, tropical retreats.
Workspaces That Inspire
I move beyond the conventional boxy office to create sustainable and inspiring work environments. My designs prioritize open plans, natural light, and innovative features like central water channels to reduce air conditioning load, fostering productivity and well-being.
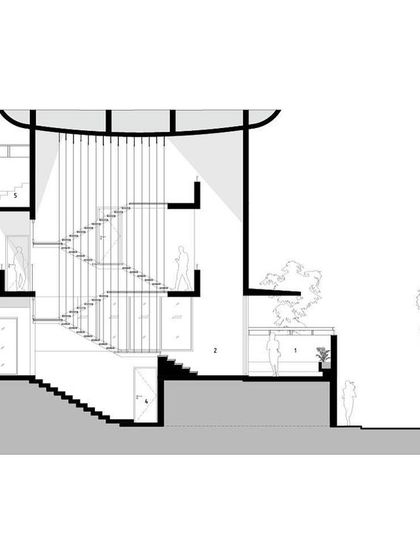
Our Studio: A Living Laboratory
My own studio is a testament to my design philosophy, built to reflect strong conceptual ideation and structural exploration. The building features tapered form-finished concrete portals, suspended galleries, and a design that is true to its materials, serving as an ever-evolving space for our creative process.
From Concept to Realization
Every project begins with a core idea, which I explore through sketches, drawings, and renderings. This section showcases my conceptual work, from reinventing the traditional 'totti mane' courtyard house for urban plots to large-scale competition entries for international arenas.
In The Press: Recognition & Features
I am honored to have my work and design philosophy featured in respected publications like Domus India and recognized with nominations for prestigious awards. These features offer a deeper dive into the concepts and execution of my key projects.
Additional Work & Details
This collection includes miscellaneous images from various projects, highlighting specific details, material applications, and un-categorized views that contribute to the broader story of my practice.