Featured
This is the first set of visuals a user sees, curated to make the strongest first impression. It showcases our range of skills, from stunning final designs to the diligent process behind them.
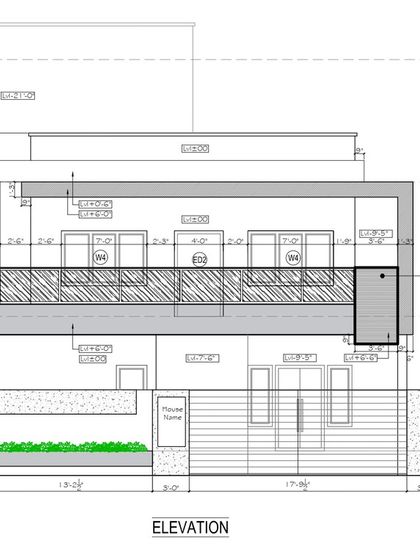
Modern Residential Elevations
We specialize in creating striking, modern facades for residential buildings that blend aesthetic appeal with functional design. Our elevation designs focus on clean lines, innovative materials like wood cladding and concrete finishes, and a strong sense of presence.
Luxury Villa & Landscape Design
We design bespoke villas that seamlessly integrate with their natural surroundings, creating a harmonious flow between indoor and outdoor living. Our approach includes thoughtful landscape design to enhance the property's beauty and tranquility.
Commercial Architecture & Interiors
We provide comprehensive architectural and interior design solutions for commercial establishments, including restaurants and showrooms. Our focus is on creating functional, brand-centric spaces that offer a unique experience for customers.
The Construction Journey: From Foundation to Finish
We believe in a hands-on approach, overseeing every stage of construction to ensure the final structure perfectly matches the design intent. This gallery showcases our process, from initial site work and foundation laying to the final structural frame.
Interior Design & Detailing
Our interior work focuses on creating spaces that are both beautiful and practical. We manage everything from space planning and custom furniture installation to lighting and final finishes, ensuring every detail is executed with precision.
Architectural Plans & 3D Visualization
Our design process is built on clarity and precision, using detailed 2D plans and realistic 3D models to help you visualize the project before construction begins. This ensures every aspect of the design is perfected and aligned with your vision.
Additional Design Concepts
A collection of various design explorations and architectural details from our portfolio. This includes close-up studies of materials, forms, and unique facade elements that showcase our creative range.