Featured
This is the first look at my work, curated to showcase the quality, style, and breadth of my architectural design services. These selections represent the core principles of my practice: creating timeless, functional, and aesthetically compelling spaces.
Japandi & Minimalist Apartments
This collection showcases my work on 'The Time Capsule', a project that embodies the Japandi ethos of simplicity and natural connection. I focused on creating uncluttered spaces with clean lines, using sustainable materials like limewash paints, wood, and terrazzo to build a calm, timeless home.
Art Deco & Modern Elegance
In the 'Tranquil Tides' project, I blended contemporary design with classic Art Deco elements to create a uniquely elegant home. I used a neutral grey palette, natural oakwood, and marble, maximizing ceiling height with dramatic vaulted arches to craft a space that is both soothing and sophisticated.
Serene & Functional Bedrooms
I design bedrooms to be personal sanctuaries that promote rest and calm. This collection shows my approach to creating these spaces, using custom furniture, tactile materials like rattan and linen, and thoughtful color palettes to reflect different personalities, from earthy and natural to retro-inspired.
Architectural Vision: Facades & Refurbishments
My services extend beyond interiors to full-scale architectural design, including new constructions, bungalow refurbishments, and township planning. I use detailed 3D renderings and walkthroughs to help you visualize the final outcome, focusing on modern aesthetics, clean lines, and functional design.
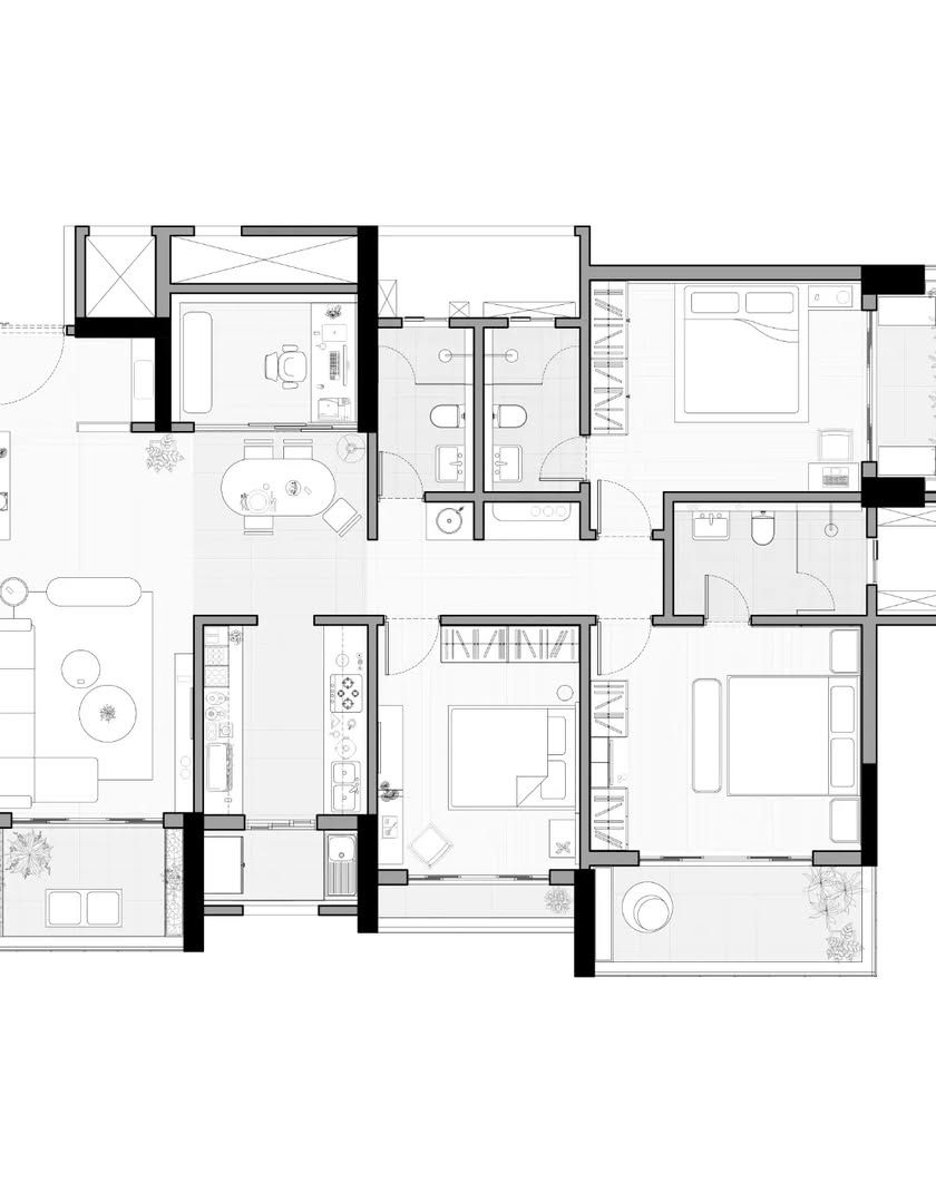
The Design Blueprint
Every successful project begins with a meticulous plan. This collection of floor plans demonstrates the technical foundation of my work, showcasing how I approach residential space optimization, traffic flow, and furniture layout to create homes that are both beautiful and highly functional.