mytribe

IF.BE: The Ice Factory Reimagined

This is a detailed look at the transformation of a 147-year-old ice factory in Mumbai's Ballard Estate into a vibrant cultural hub. The project was an exercise in urban regeneration, starting with the discovery of a choked banyan tree and evolving into a dialogue between the 'Found' and the 'Made'. The result is a flexible, multi-layered space for art, architecture, and community.

IF.BE: The Ice Factory Reimagined photo 1IF.BE: The Ice Factory Reimagined photo 2IF.BE: The Ice Factory Reimagined photo 3IF.BE: The Ice Factory Reimagined photo 4IF.BE: The Ice Factory Reimagined photo 5IF.BE: The Ice Factory Reimagined photo 6IF.BE: The Ice Factory Reimagined photo 7IF.BE: The Ice Factory Reimagined photo 8
IF.BE: The Ice Factory Reimagined photo 10IF.BE: The Ice Factory Reimagined photo 11

The Archaeological Process: Unmaking & Remaking

My approach is not to impose, but to uncover. Like an archaeologist, I peel back layers of time, scraping plaster to find original brick and discovering forgotten structures. This hands-on, forensic examination allows the building's true bones to emerge before the surgical process of reinforcement and restoration begins.

The Archaeological Process: Unmaking & Remaking photo 1The Archaeological Process: Unmaking & Remaking photo 2The Archaeological Process: Unmaking & Remaking photo 3The Archaeological Process: Unmaking & Remaking photo 4The Archaeological Process: Unmaking & Remaking photo 5The Archaeological Process: Unmaking & Remaking photo 6The Archaeological Process: Unmaking & Remaking photo 7The Archaeological Process: Unmaking & Remaking photo 8The Archaeological Process: Unmaking & Remaking photo 9The Archaeological Process: Unmaking & Remaking photo 10The Archaeological Process: Unmaking & Remaking photo 11The Archaeological Process: Unmaking & Remaking photo 12The Archaeological Process: Unmaking & Remaking photo 13The Archaeological Process: Unmaking & Remaking photo 14The Archaeological Process: Unmaking & Remaking photo 15

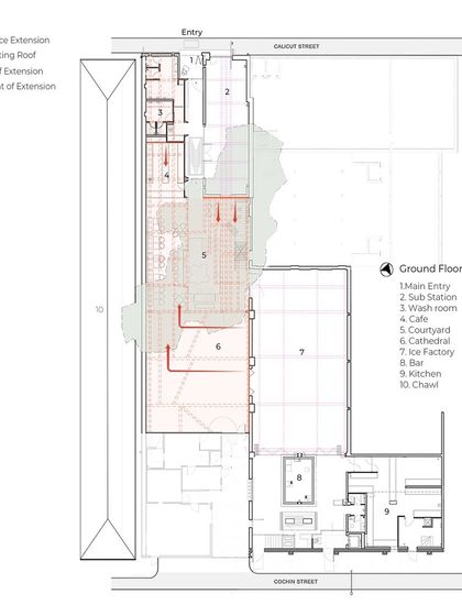
From Sketch to Structure: The Architectural Vision

Every project begins with a vision, but the final form is a conversation between the initial idea and the realities discovered on site. These drawings, plans, and graphics illustrate the intellectual framework, showing how I map the journey from a dilapidated structure to a revitalized space, balancing structural needs with historical integrity.

From Sketch to Structure: The Architectural Vision photo 1From Sketch to Structure: The Architectural Vision photo 2From Sketch to Structure: The Architectural Vision photo 3From Sketch to Structure: The Architectural Vision photo 4From Sketch to Structure: The Architectural Vision photo 5From Sketch to Structure: The Architectural Vision photo 6From Sketch to Structure: The Architectural Vision photo 7From Sketch to Structure: The Architectural Vision photo 8From Sketch to Structure: The Architectural Vision photo 9From Sketch to Structure: The Architectural Vision photo 10From Sketch to Structure: The Architectural Vision photo 11From Sketch to Structure: The Architectural Vision photo 12

Wageshwar Temple: A Dialogue with Light

The restoration of this temple, which is submerged by monsoon rains each year, was about more than structural repair. It was an exercise in creating a spiritual revelation. The goal was not just to bring the temple back to what it was, but to strategically draw light into its sacred spaces, connecting the structure to the heavens.

Wageshwar Temple: A Dialogue with Light photo 2Wageshwar Temple: A Dialogue with Light photo 3Wageshwar Temple: A Dialogue with Light photo 4Wageshwar Temple: A Dialogue with Light photo 5Wageshwar Temple: A Dialogue with Light photo 6Wageshwar Temple: A Dialogue with Light photo 7Wageshwar Temple: A Dialogue with Light photo 8Wageshwar Temple: A Dialogue with Light photo 9Wageshwar Temple: A Dialogue with Light photo 10

Revisiting a Landmark: Unit Trust of India HQ

Architecture must evolve with the organizations it houses. Twenty-seven years after its initial completion, I was invited back to the Unit Trust of India HQ. This project involved retaining the original structural geometry while introducing new sculptural forms to break the rectilinear configuration, adapting the space for the client's current needs.

Revisiting a Landmark: Unit Trust of India HQ photo 1

New Horizons: Works in Progress

The search for balance and the dialogue with history is a continuous exploration. This is a glimpse into new projects on the horizon. Each site presents a unique set of challenges and opportunities, where the process of discovery has just begun.

New Horizons: Works in Progress photo 1New Horizons: Works in Progress photo 2New Horizons: Works in Progress photo 3New Horizons: Works in Progress photo 4New Horizons: Works in Progress photo 5

Philosophy & Practice: Sharing the Vision

I believe an architect is a custodian, a catalyst searching for balance between nature, history, and human need. Through conversations, lectures, and collaborations, I explore and share this philosophy. The goal is to plant seeds of thought about sustainable development and our role as architects in the urban landscape.