Featured
A glimpse into the homes we create. This curated selection showcases our three signature styles: the tranquil and traditional, the bold and balanced, and the serene and minimal. Each project is a testament to our philosophy of creating spaces that are calm, grounded, and a true reflection of you.
Bold & Balanced Homes
For clients who love a pop of personality, we design spaces that masterfully use color and geometry. We balance bold statements, like a vibrant blue kitchen or sculptural furniture, with clean lines and neutral backdrops to create a home that is both energetic and harmonious.
Textural & Traditional Sanctuaries
We create tranquil retreats from the city's hustle by weaving traditional Indian aesthetics with modern comfort. These homes celebrate natural materials like wood, stone, and cane, featuring custom elements like carved panels and swings, all set within a calm, earthy color palette.
Whitewashed Serenity
This design approach focuses on minimalism, softness, and creating open, light-filled spaces. We use a palette of whites, beiges, and soft neutrals, maximizing natural light and eliminating clutter to craft homes that feel expansive, calm, and effortlessly elegant.
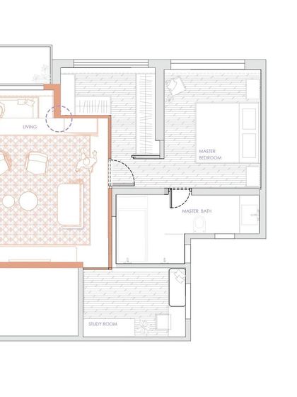
From Concept to Completion
We handle every detail of your project, from the initial floor plans and mood boards to overseeing construction and placing the final cushion. This gallery shows our meticulous process, illustrating how we transform empty spaces and initial concepts into beautifully realized, functional homes.
Awards & Media Features
We are honored to be recognized by our peers and leading design publications for our commitment to creating exceptional spaces. Our work has been featured in magazines like Architectural Digest and GoodHomes, and we have received several awards for design excellence.